Blanco Encalada 5506
Inicio Marzo 2023 Finalizado Marzo 2025 9 pisos - 1875 m²

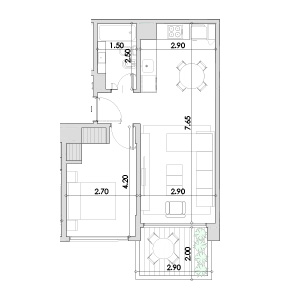
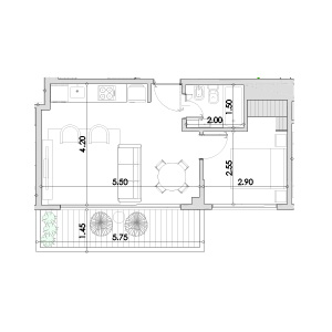
Burela es un edificio multifamiliar de 9 pisos con unidades de 2 y 3 ambientes ubicado en el corazón de Villa Urquiza.

Edificio de viviendas que cuenta con una ubicación privilegiada en pleno barrio Villa Urquiza, con múltiples accesos a medios de transporte tales como: subte línea B, la estación Urquiza del Ferrocarril Mitre y una innumerable cantidad de líneas de colectivos. A metros de vías con gran oferta comercial, gastronómica y cultural como Av. Triunvirato, Av. Monroe, Av. Olazábal y el boulevard Mendoza. Permite disfrutar de la tranquilidad de un barrio tradicional y al mismo tiempo de la cercanía a centros educativos, bares, restaurantes y locales comerciales.

Areas comunes

  • Hall de acceso: De diseño moderno con frente vidriado y carpintería en aluminio
  • Piso: Porcelanato, marca Ilva o similar
  • Cielorraso: Suspendido con artefactos de iluminación embutidos
  • Paredes: Enlucido en yeso con detalles de terminación
  • Ascensores automáticos: De última generación en acero inoxidable

Living-Comedor

  • Paredes y cielorraso: Enlucido en yeso proyectado
  • Carpintería: Hojas de aluminio
  • Piso de porcelanato simil madera
  • Pintura: Látex satinado de 1ra calidad marca Sinteplast o similar, en paredes y cielorrasos

Baños

  • Revestimientos: de porcelanato de 1era calidad
  • Cielorraso: Suspendido enlucido en yeso
  • Piso: Porcelanato de primera calidad
  • Pintura: Látex satinado de 1ra calidad marca Sinteplast o similar, interiores en paredes y cielorrasos
  • Artefactos: Marca Ferrum o similar
  • Grifería: FV o similar

Dormitorios

  • Paredes y cielorraso: Enlucido en yeso proyectable
  • Carpintería: Hojas de aluminio
  • Piso: De porcelanato simil madera
  • Pintura: Látex satinado de 1ra calidad marca Sinteplast o similar, en paredes y cielorrasos
  • Frente e interiores de placard: Hojas corredizas con marco de aluminio

Cocinas

  • Paredes: Cerámico y enlucido en yeso proyectable
  • Cielorraso: Suspendido enlucido en yeso
  • Carpintería: Hojas de aluminio
  • Piso: Porcellanato de primera calidad
  • Pintura: Látex satinado de primera calidad marca Sinteplast o similar, en paredes y cielorrasos
  • Mueble de cocina: De melamina
  • Mesada: Cuarzo con pileta en acero inoxidable
  • Grifería: Monocomando FV o similar
  • Horno y anafe: Eléctricos en acero inoxidable

Telefonía, TV e internet

  • Instalación preparada para conexiones

Instalación eléctrica

  • Circuitos con interruptores térmicos

Agua caliente

  • Servicio central

Climatización

  • Instalación preparada para la conexión de sistema split frío-calor

Ins. cloacales y pluviales

  • En PVC

Inst. de agua fría y caliente

  • Ejecutada en cañerías sistema termofusión